If your mature tree is located within striking distance of a frequently occupied area, your home or other high-value target, don’t wait until the next ice or wind storm. Our ISA Certified Arborists and Tree Risk Assessment Qualified technicians (TRAQ) can perform a detailed inspection of your tree.
Whether working from the ground or aloft, our arborists will identify and evaluate any structural defect that may pose a risk to people or property. If tree removal is recommended, our tree chipping service ensures that leftover branches and debris are disposed of quickly and cleanly.
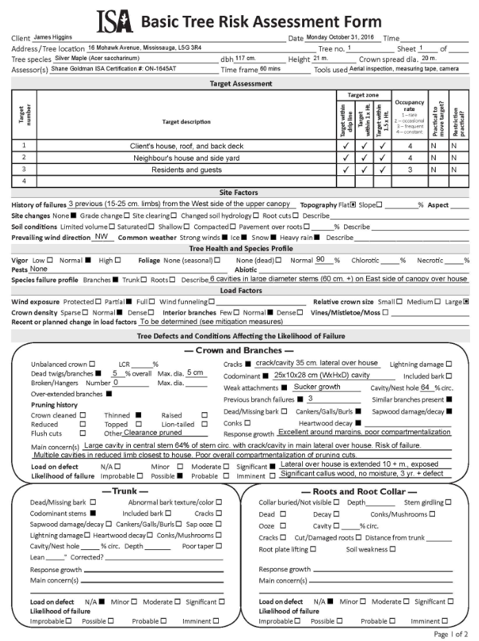
A tree risk assessment is used to evaluate the likelihood of a tree or branch failing and the potential impact on people, property, or surrounding areas. The assessment helps identify safety concerns before incidents occur.
Tree risk assessments are recommended when a tree shows signs of decay, leaning, root disturbance, or after major weather events. They are also commonly requested for trees near buildings, walkways, parking areas, or play spaces.
A tree risk assessment evaluates structural integrity, branch attachments, trunk condition, root stability, and site conditions. These factors help determine the level of risk and appropriate next steps.
Yes. A tree risk assessment specifically focuses on safety and failure potential, while a general inspection may focus on overall tree health or maintenance needs. Risk assessments follow established evaluation standards.
After the assessment, recommendations are provided to reduce identified risks. These may include monitoring, corrective pruning, support systems, or further evaluation, depending on the findings.

